宇都宮市鶴田町 223.86㎡ 売地

1,200万円

栃木県宇都宮市鶴田町3149-1

日光線「鶴田」駅徒歩16分

東武宇都宮線「南宇都宮」駅徒歩24分

価格
1,200万円
土地面積(坪数)
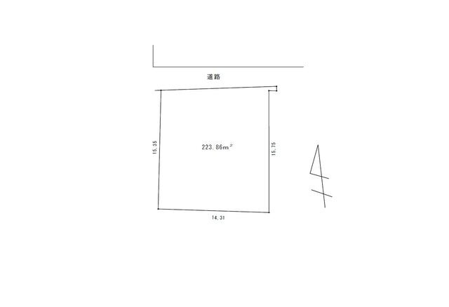
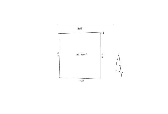
223.86㎡(67.71坪)
所在地
栃木県宇都宮市鶴田町3149-1
築年
-(-)
駐車
-
交通

日光線鶴田」駅 徒歩16分

東武宇都宮線南宇都宮」駅 徒歩24分

宇都宮市鶴田町 223.86㎡ 売地の基本情報

物件名
宇都宮市鶴田町 223.86㎡ 売地
価格
1,200万円
土地面積
223.86㎡
築年月
-(-)
総区画数
-
所在地
栃木県宇都宮市鶴田町3149-1
交通

日光線鶴田」駅 徒歩16分

東武宇都宮線南宇都宮」駅 徒歩24分

宇都宮市鶴田町 223.86㎡ 売地の詳細情報

設備条件
  • 閑静な住宅地
設備(その他)
    -
駐車場/月額
-/-
土地権利
所有権
国土法届出
不要
用途地域
第一種低層住居専用
区画数
- / -
管理形態
-
管理員の勤務形態
-
管理会社
-
取引態様
一般媒介
引渡し
相談
開発許可番号
-
備考
接道幅10m以上あれば車の出し入れが非常に楽です。環境の良いエリアにある売地です。土地面積は223.86㎡(実測)となっています。不動産探しは、経験と知識豊富なスタッフの揃う当社にお任せください。親切丁寧なご対応をモットーとし、お客様のご要望にお応えできるよう努めております。お客様のお問い合わせをお待ちしております。

宇都宮市鶴田町 223.86㎡ 売地のコメント(おすすめポイント)

便利なスーパー「フードオアシスオータニ 鶴田店」まで484mです。こちらの土地面積は223.86㎡(実測)となっています。土地の購入をご検討されているなら、ニーズも高いこちらの売地はいかがでしょうか。接道幅10m以上となっております。地元密着、そして不動産のプロである当社スタッフが、お客様の不動産探しを全力でお手伝いをいたします。ニーズの高い日光線鶴田周辺の不動産情報もございますので、ぜひお気軽にお問い合わせください。

宇都宮市鶴田町 223.86㎡ 売地で募集中の物件

  1. 67.71坪 (223.86㎡)

    1,200万円(17.72万円/坪)

周辺施設

  • ファッション市場 Sanki(サンキ) 鶴田店の画像

    その他

    ファッション市場 Sanki(サンキ) 鶴田店

    78m(1分)

  • 宇都宮中央警察署 滝谷交番の画像

    警察

    宇都宮中央警察署 滝谷交番

    345m(5分)

  • セブンイレブン 宇都宮滝谷町店の画像

    コンビニエンスストア

    セブンイレブン 宇都宮滝谷町店

    385m(5分)

  • 虎次郎の画像

    焼肉

    虎次郎

    412m(6分)

  • フードオアシスオータニ 鶴田店の画像

    スーパー

    フードオアシスオータニ 鶴田店

    484m(7分)

  • ステーキ宮 鶴田店の画像

    その他

    ステーキ宮 鶴田店

    503m(7分)

  • 丸亀製麺 宇都宮鶴田店の画像

    そば・うどん

    丸亀製麺 宇都宮鶴田店

    589m(8分)

  • セブン-イレブン宇都宮上鶴田店の画像

    コンビニエンスストア

    セブン-イレブン宇都宮上鶴田店

    686m(9分)

  • 酒のやまや 鶴田店の画像

    酒屋

    酒のやまや 鶴田店

    722m(10分)

  • 宇都宮市立宮の原中学校の画像

    中学校

    宇都宮市立宮の原中学校

    752m(10分)

  • 宇都宮市立富士見小学校の画像

    小学校

    宇都宮市立富士見小学校

    839m(11分)

  • セブン-イレブン宇都宮滝の原店の画像

    コンビニエンスストア

    セブン-イレブン宇都宮滝の原店

    886m(12分)

  • 餃子専門店正嗣 鶴田店の画像

    中華料理

    餃子専門店正嗣 鶴田店

    904m(12分)

  • ココス 宇都宮鶴田店の画像

    ファミリーレストラン

    ココス 宇都宮鶴田店

    995m(13分)

近隣の物件

  1. 宇都宮市上戸祭町

    - (205.65㎡)

    980万円

  2. 宇都宮市下小池町

    - (397.00㎡)

    310万円

  3. 宇都宮市御幸ケ原町

    - (142.29㎡)

    850万円

  4. 宇都宮市鶴田町

    - (1754.70㎡)

    15,930万円

宇都宮市鶴田町 223.86㎡ 売地

お気軽にお問い合わせください

LINEからお問い合わせ 無料お問い合わせ

MC住宅情報センター

0120-938-525

10:00~19:00

(休:火曜日・水曜日)