クレイドルガーデン小山市喜沢第8 新築一戸建て

2,190万円~2,290万円

栃木県小山市大字喜沢212-1

東北本線「小山」駅徒歩39分

価格
2,190万円~2,290万円
間取り/建物面積
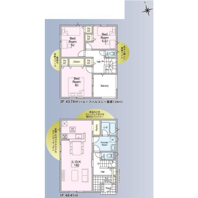
3LDK/93.15㎡~95.16㎡
所在地
栃木県小山市大字喜沢212-1
築年
2026年3月(予定)
駐車
交通

東北本線小山」駅 徒歩39分

クレイドルガーデン小山市喜沢第8 新築一戸建ての基本情報

物件名
クレイドルガーデン小山市喜沢第8 新築一戸建て
価格
2,190万円~2,290万円
建物面積
93.15㎡~95.16㎡
土地面積
45.63坪~49.55坪(150.87㎡~163.83㎡)
築年月
2026年3月(予定)
総戸数
3戸
所在地
栃木県小山市大字喜沢212-1
交通

東北本線小山」駅 徒歩39分

クレイドルガーデン小山市喜沢第8 新築一戸建ての詳細情報

設備条件
  • 閑静な住宅地
  • 建設住宅性能評価書付
  • 建物検査済み
  • 駐車2台可
  • 耐震構造
設備(その他)
    -
駐車場/月額
有/-
土地権利
所有権
国土法届出
不要
用途地域
第一種住居
取引態様
一般媒介
引渡し
2026年3月下旬
備考
一生に一度のマイホーム探しは、ぜひ新築戸建てで。外壁材としてサイディングを使用している物件です。室内環境まで左右する基礎は、強靭なベタ基礎となっております。誰が使うにも使いやすい前面道路と高低差がない形状です。人生に何度もない不動産購入だからこそ、こだわりを貫いて探したいですよね。当社では数多くの不動産情報を取り扱っております。あなたの不動産探しのお手伝いをさせてください。

クレイドルガーデン小山市喜沢第8 新築一戸建てのコメント(おすすめポイント)

誰が使うにも使いやすい前面道路と高低差がない形状です。多くの方から高いニーズのある、内装もピカピカの新築戸建ての物件です。地盤調査済みの物件です。ベタ基礎なので床下の湿気も気になりません。人生に何度もない不動産購入だからこそ、こだわりを貫いて探したいですよね。当社では数多くの不動産情報を取り扱っております。あなたの不動産探しのお手伝いをさせてください。

クレイドルガーデン小山市喜沢第8 新築一戸建てで募集中の物件

  1. 2号棟

    28.17坪 (93.15㎡)

    2,190万円(77.74万円/坪)

  2. 1号棟

    28.78坪 (95.16㎡)

    2,290万円(79.57万円/坪)

周辺施設

  • 認定こども園静林幼稚園の画像

    幼稚園

    認定こども園静林幼稚園

    266m(4分)

  • セブンイレブン 小山喜沢店の画像

    コンビニエンスストア

    セブンイレブン 小山喜沢店

    357m(5分)

  • スギ薬局小山喜沢店の画像

    ドラッグストア

    スギ薬局小山喜沢店

    373m(5分)

  • ニトリ 小山店の画像

    インテリア

    ニトリ 小山店

    666m(9分)

  • ヨークベニマル小山ゆうえんち店の画像

    スーパー

    ヨークベニマル小山ゆうえんち店

    962m(13分)

  • はま寿司 小山喜沢店の画像

    寿司

    はま寿司 小山喜沢店

    1047m(14分)

  • セブンイレブン 小山城北店の画像

    コンビニエンスストア

    セブンイレブン 小山城北店

    1474m(19分)

  • 小山市立桑中学校の画像

    中学校

    小山市立桑中学校

    1752m(22分)

  • 小山市立羽川小学校の画像

    小学校

    小山市立羽川小学校

    2360m(30分)

近隣の物件

  1. 小山市城西1丁目

    4SLDK (105.77㎡)

    2,659万円

  2. 小山市大字中久喜

    3LDK (96.88㎡)

    2,790万円

  3. 小山市大字間々田

    3LDK (89.09㎡)

    1,890万円

  4. 小山市大字横倉

    4LDK (95.57㎡)

    2,690万円

よく見られている物件

  1. 宇都宮市上戸祭町

    4LDK (101.02㎡)

    2,790万円

  2. 宇都宮市宮本町

    3LDK (87.77㎡)

    2,890万円

  3. 宇都宮市五代1丁目

    4LDK (120.60㎡)

    1,998万円

  4. 宇都宮市春日町

    3LDK (65.79㎡)

    1,599万円

クレイドルガーデン小山市喜沢第8 新築一戸建て

お気軽にお問い合わせください

LINEからお問い合わせ 無料お問い合わせ

MC住宅情報センター

0120-938-525

10:00~19:00

(休:火曜日・水曜日)